Bei Fragen jeglicher Art, kontaktieren Sie gerne unsere Fachberatung. Wir sind Montag bis Freitag von 07.30 - 17.00 Uhr für Sie da.
Tel. 04851 909535
Mail: info@casa-lignea.de
Kontakt : 04851 /959042
Information Rundum Sorglos Paket
Das Rundum-sorglos Zubehörpaket enthält unsere empfohlenen Zubehörartikel in den passenden Größen und Mengen:
- Gummigranulat-Pads
- Sturmwinkel (1 Set à 4 Stk.)
- Lüftungsgitter (1 Set à 4 Stk.)
- EPDM Dachfolie
- Blendenabdeckung
- Saicos Universalimprägnierung
Information Basis-Zubehör
Das Montage Basiszubehör Gr. L enthält:
Gummigranulat-Pads (120 Stück)
Sturmwinkel (1 Set a 4 Stück)
Lüftungsgitter (1 Set a 4 Stück)
Produktbeschreibung
Anlehngartenhaus Salvius – Viel Stauraum mit Stil und Stabilität
Das Modell Salvius kombiniert durchdachte Funktionalität mit hochwertiger Verarbeitung. Perfekt zum Anlehnen an bestehende Gebäude – ideal für Garten, Terrasse oder Hof.
Ausstattung & Highlights:
Massivholzdach aus robusten Nut- und Federbrettern – langlebig und wetterfest
Kompletter Holzfußboden inklusive, mit eleganten Fußleisten für ein gepflegtes Gesamtbild
40 mm starke Wandbohlen mit Doppelnut und -feder – sorgen für eine besonders stabile Konstruktion
Kesseldruckimprägnierte Fundamenthölzer – Schutz gegen aufsteigende Feuchtigkeit inklusive
Stilvolle Doppeltür mit Leimholzrahmen und Echtglasverglasung für mehr Licht und eine hochwertige Optik
Edelstahltürschwelle – langlebig, robust und pflegeleicht
Zylinderschloss und Drückergarnitur bereits enthalten – für mehr Sicherheit
Sturmleisten zur Windsicherung – geben zusätzliche Stabilität bei Wind und Wetter
Aus naturbelassenem, nordischem Fichtenholz – hochwertig, formstabil und bereit zur individuellen Gestaltung
Montagematerial und detaillierte Aufbauanleitung im Lieferumfang enthalten
Dacheindeckung separat erhältlich – passen Sie das Dach Ihrem Stil an
Lieferung erfolgt unbehandelt (Fichte natur) zur freien farblichen Gestaltung
Hinweis: Wandanschlussprofil für das Dach sowie Montagematerial zur Wandbefestigung nicht im Lieferumfang, aber optional erhältlich
Fußboden: Ein passender Holzfußboden ist bereits im Lieferumfang enthalten.
Farbliche Behandlung
Die Hölzer dieses Bausatzes werden unbehandelt und naturbelassen geliefert. Da Holz im Außenbereich ständig der Witterung sowie der Gefahr von Pilz- und Insektenbefall ausgesetzt ist, ist ein entsprechender Schutzanstrich unbedingt notwendig.
Achten Sie bereits beim Aufbau darauf, Nut und Feder der Bohlen sorgfältig zu imprägnieren. Im Anschluss sollte die gesamte Außenfläche behandelt werden, um das Holz wirksam zu schützen.
Nach dem Trocknen der Imprägnierung empfiehlt sich ein deckender Anstrich oder eine hochwertige Holzlasur als zusätzlicher Schutz vor UV-Strahlung und Verfärbungen. Bitte beachten Sie hierbei die Verarbeitungshinweise des jeweiligen Farb- bzw. Lasurherstellers.
Dacheindeckung
Aufgrund der flachen Dachneigung ist eine Eindeckung mit Dachschindeln nicht geeignet. Wir empfehlen stattdessen die Verwendung von KSK-M-Dachbahnen oder einer EPDM-Folie – beide Optionen sind als Zubehör erhältlich. Das Dachgefälle ist nach hinten ausgerichtet.
Technische Eigenschaften
Holzart: Nordische Fichte
Farbe: Naturbelassen
Dachform: Flachdach
Bauweise: Blockbohlensystem
Wandstärke: 40 mm
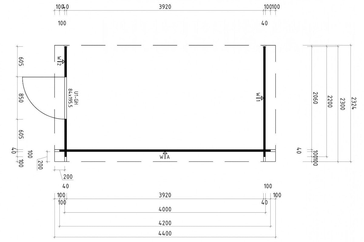
Wandaußenmaß: 210 x 400 | 300 x 300 cm
Blockbohlenaußenmaß: 220 x 420 | 310 x 320 cm
Seitenwand Höhe: 228 cm
Firsthöhe: 245 cm
Grundfläche: 8,4 | 9,00 m²
Dachüberstand vorne: 20 cm
Dachüberstand hinten: 20 cm
Dachüberstand seitlich: 20 cm
Dachkonstruktion: 18 mm Profilschalung mit Nut und Feder
Wir lassen Sich auch nach dem Kauf nicht allein. Unsere Montagepartner sind in ganz Deutschland für uns unterwegs und bauen Ihr Gartenhaus fachmännisch auf.
Und so funktioniert's: Wählen Sie bei der Bestellung aus, dass Sie von einem Montagepartner kontaktiert werden möchten. Wir wählen den richtigen Partner für Sie aus und dieser wird sich dann mit Ihnen in Verbindung setzen und ein individuelles Angebot vereinbaren.
Häufig gestellte Fragen - FAQ
Schauen Sie auch gerne auf unserer FAQs Seite vorbei.
Wie wird mein bestelltes Gartenhaus angeliefert?
Das Gartenhaus wird als Paket geliefert – die Länge richtet sich dabei nach dem längsten Bauteil des Hauses. Generell handelt es sich um 120 cm Breite und maximal 100 cm Höhe. Das Paket wird von einem 40-Tonner LKW mit Sattelzug und Auflieger geliefert. Ein Stapler zur Entladung wird mitgeführt. Die Länge des LKWs beträgt zirka 17 Meter.
Bitte überprüfen Sie vor der Bestellung, ob der LKW in Ihre Straße einfahren kann. Ob Ihre Straße für eine Zufahrt des LKWs geeignet ist, können Sie beim zuständigen Straßenbauamt erfragen. Die Anlieferung erfolgt generell immer nur frei Bordsteinkante.
Wie lange sind die Lieferzeiten?
Auf der Artikeldetailseite wird die Verfügbarkeit des jeweiligen Artikels sowie die Lieferzeit angegeben.
Wo kann ich den Versand- und Lieferstatus meiner Bestellung einsehen?
Wenn Sie sich unter "Mein Konto" einloggen, können Sie jederzeit den aktuellen Status Ihrer Bestellung einsehen.
Wie sehe ich, dass meine Bestellung abgeschlossen wurde?
Wenn Sie den Kaufvorgang abgeschlossen haben, erscheint auf dem Bildschirm eine Bestätigung mit allen Informationen über Kauf, Lieferadresse und ausgewählte Artikel. Diesen Beleg können Sie ausdrucken und natürlich erhalten Sie eine Bestellbestätigung per E-Mail zugesendet.
Wie kann ich einen Artikel zurückgeben?
Sollte Ihnen der gelieferte Artikel einmal nicht zusagen, informieren Sie uns bitte über unser Rücksendeformular (Reklamation). Wir senden Ihnen dann umgehend alle benötigten Informationen, die zur Rücksendung der Ware benötigt werden, per E-Mail zu.
Sie tragen die unmittelbaren Kosten der Rücksendung der Waren und können daher das Versandunternehmen selbst bestimmen!
Sie suchen ein individuelles Gartenhaus nach Maß?
Gerne fertigen wir Ihr persönliches Gartenhaus nach Ihren individuellen Vorstellungen und Wünschen.
Manchmal findet man trotz großer Auswahl nicht das passende Holzhaus, Blockhaus oder Freizeithaus. Sprechen Sie uns an, wir können fast jedes Gartenhaus nach Ihren individuellen Vorgaben anfertigen. Wir unterbreiten Ihnen gerne ein persönliches Angebot.
Professionelle Fachberatung
Wir wissen wovon wir reden, denn seit über 90 Jahren ist der beliebte Werkstoff Holz unsere Leidenschaft.
Gartenhaus nach Maß
Sie suchen ein individuelles Gartenhaus? Wir planen Ihr Traumhaus ganz nach Ihren persönlichen Wünschen.
Gartenhaus-Ausstellung Marne
Bei uns in Marne finden Sie mit über 40 Gartenhäusern eine der größten Ausstellungen Norddeutschlands.
Wenn du dich für eine Auswahl entscheidest, wird die Seite komplett aktualisiert.